
2
1
4
1
2
About the home
Key Features
- Rent to own
- Single garage (1 car) + outside parking for another car
- Attractive kitchen/dining room with modern soft close units, stylish worktops, and French doors to garden
- Integrated oven, hob, cooker hood, dishwasher and fridge freezer
- Master bedroom complete with en suite with shower
- Contemporary family bathroom
- 4th bedroom or flexible office / dressing room
- Turf to rear garden
- Energy efficient EPC B, with an air source heat pump and solar PV panels
- Electric car charging point
- 10-year New Home Warranty
Property Details
Welcome to The Sparrowhawk - a thoughtfully designed 4-bedroom detached home in the heart of Shropshire's countryside, offering a perfect blend of style, functionality, and sustainability.
With 1,227 sq ft of living space, Sparrowhawk offers flexible and modern living for families looking to set down roots in Shrewsbury.
Enjoy a well proportioned open-plan kitchen and dining space ideal for entertaining, alongside a separate lounge and convenient downstairs WC. Upstairs, four well-sized bedrooms - including a spacious master with en suite - provide ample room to grow. One of the bedrooms can be used flexibly as an office / study or dressing room.
Available move-in starting in February 2026.
Development Details
Charles' View is a beautifully designed development of 2, 3 and 4-bedroom all-electric, energy efficient homes, attractively located in the popular town of Shrewsbury.
Each home incorporates a range of high-efficiency design features compatible with modern and sustainable living, including air source heat pumps and solar PV panels.
The technology and systems Cornovii use help reduce carbon emissions, reduce energy bills, and emit, on average, at least 20% less CO² than a typical new build.
The energy efficiency of these new homes is perfectly complimented by the beautifully designed interiors including contemporary fitted kitchens and bathrooms.
Excellent bus routes, Shrewsbury Railway Station a short drive away and road links to the A5/M54/M6 to Telford and Birmingham and to Wales via the Shrewsbury Bypass make this a fantastic location for commuters.
Families with children will be delighted that there are several primary and secondary schools nearby, and for further education Shrewsbury Colleges Group, a further education college is on the doorstep.
Close by is Shrewsbury town centre offering a wide selection of high street and boutique shops, parks to enjoy, and a variety of entertainment with many restaurants, pubs, clubs, and cafés to choose from.
There are many recreational activities and cultural points of interest to choose from and plenty of family entertainment such as Theatre Severn, Cineworld and Hollywood Bowl. There is certainly something for everyone.
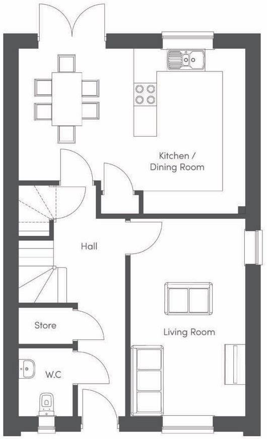
Ground floor plan
| Room | Feet/Inches | Metres/Centimetres | Dimensions |
|---|---|---|---|
| Kitchen/Dining | 19'7" ✕ 14'1" | 6.0m ✕ 4.3m | |
| Living Room | 9'8" ✕ 17'1" | 3.0m ✕ 5.2m | |
| WC | 5'9" ✕ 3'6" | 1.8m ✕ 1.4m |

First floor plan
| Room | Feet/Inches | Metres/Centimetres | Dimensions |
|---|---|---|---|
| Bedroom 1 | 11'5" ✕ 12'1" | 3.5m ✕ 3.7m | |
| Ensuite | 3'3" ✕ 8'2" | 1.0m ✕ 2.5m | |
| Bedroom 2 | 12'1" ✕ 12'8" | 3.7m ✕ 3.9m | |
| Bedroom 3 | 6'9" ✕ 12'8" | 2.1m ✕ 3.9m | |
| Bedroom 4 | 11'5" ✕ 7'2" | 3.5m ✕ 2.2m | |
| Bathroom | 6'6" ✕ 8'2" | 2.0m ✕ 2.5m |


